Pererenan, Bali, Indonesia
Unbuilt, 2016
Figures/Landscape represent a place and time to dwell on and in the often contradictory ideas of transience and permanence, past and future, vulnerability and security. The collection of installations are the grounds in which to ceremoniously practice our temporality.
Cradled by an ocean and a river, a conflux of movement and change we build a framework to experience the open site. That openess/exposure is paramount in the built works.
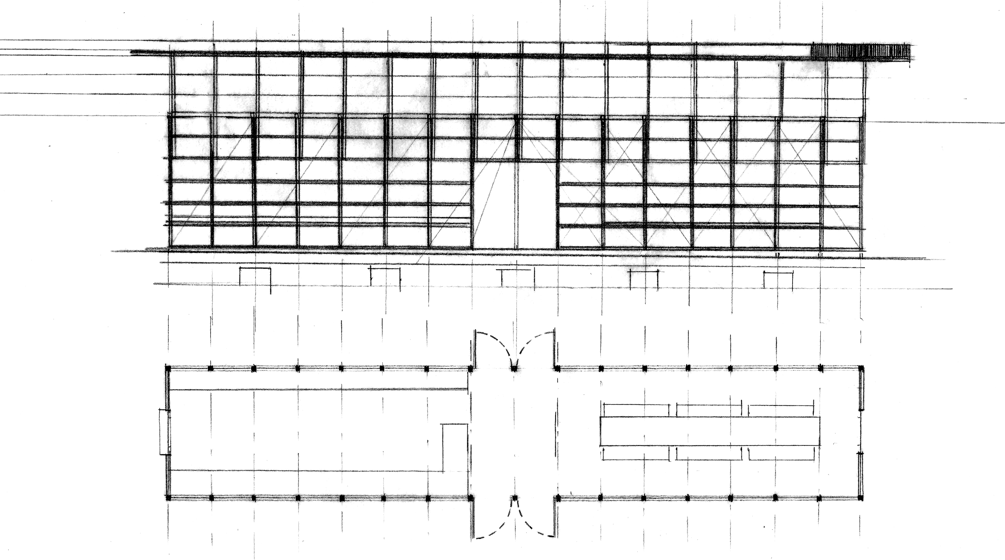
Wooden figures akin to skeletal remains house the facilities. Constructed of repetitive wood truss frames they span over a simple foundation made from existing concrete cylinders on site. Cantilevered decks extend towards the ocean and to the interior of the site are sheltered but left to age to a grey patina from the sun. The walls are semi-porous visually and functionally allowing breezes to pass through and light to radiate from within at night.
Black volcanic masonry chimneys and fire walls provide stages for fires of varying uses. They are the ruins of the now and carry a lineage of traditional fire temples. The black sand beaches lead up to vertical black walls. Fire is the pivot of warmth from the wind and mimic the glow of the figures at night. They are the primordial ruins of the site that will live on.
An organic shape pool utilizes the natural contour of the site and abuts an equal size natural pool with tall grasses and living biology.
To wander here is easy. To endeavor here is meant to unite families, friends and strangers through a common act of gathering, to witness the act of making in a place if even for a short time. We use these structures as a space in which to share meals, entertain and rejoice.
They become the progressive ruins of our current spirit.
An organic shape pool utilizes the natural contour of the site and abuts an equal size natural pool with tall grasses and living biology.
To wander here is easy. To endeavor here is meant to unite families, friends and strangers through a common act of gathering, to witness the act of making in a place if even for a short time. We use these structures as a space in which to share meals, entertain and rejoice.
They become the progressive ruins of our current spirit.
















